海吉に売家が出ました!!
寒い日が続いていますね。この寒さで、去年種から撒いたほうれん草の成長が、何となく停滞しているように感じますが、寒さに負けず元気です。いつも食べているほうれん草が、こんなにも愛おしく感じたのは初めてです。ほうれん草とともに、春を心待ちにしている今日この頃です。
さて、今日は中区海吉の売家のご紹介です。
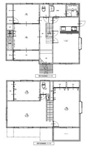
2階に13帖の多目的ホールのある4LDKのゆったりしたお家です。壁を設置すれば、お部屋としても利用できるので、5LDKも可能です。駐車場は、2台並列可能で、大型倉庫にも車を停めることができます。
アウトドア用品をはじめ、外で使う物がたっぷり収納できる倉庫があるので、色々と利用できとっても便利です。
2025年12月に全室内窓を設置済で、冷暖房の効率もGOODです!また、1・2階洗面化粧台及び2階のトイレも新しく交換したので、是非現地をご覧になってみませんか?



【物件概要】
■岡山市中区海吉2212-3
■土地/195㎡(58.98坪)
■建物/143.67㎡(43.46坪)1999年11月築
■間取り/4LDK+多目的ホール
■価格/1950万円
随時内覧も可能ですので、お気軽に0120-211-818までお問合せください。
本日もblog 訪問ありがとうございます。by スタッフH
