\申込受付、開始しました/
建築中の堀南モデルハウス
申込受付スタートしました。
「ちょっと話だけでも聞いてみたい」
「まだ検討段階だけど…」
そんな方はぜひこの相談会にご予約下さい。
販売価格:3,980万円(税込)
【物件概要】
・間取り:3SLDK+書斎
・土地面積:132.86㎡(40.19坪)
・建物面積:86.11㎡(26.04坪)
・駐車:4台可
・所在地:倉敷市堀南989-5
✔ 耐震等級3(最高等級)取得
“家族を守る性能”も妥協しない住まい
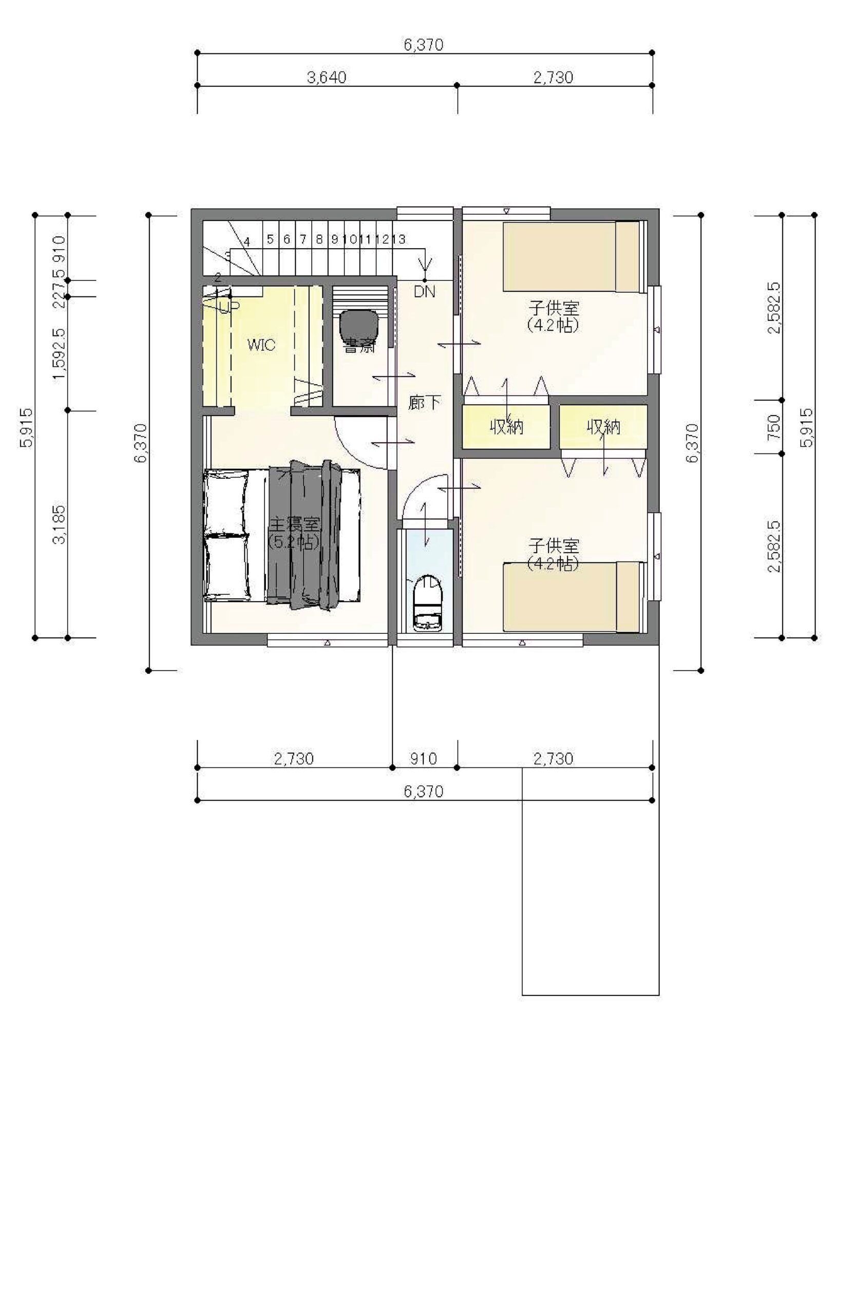
【間取り図】


【見どころPOINT】
・お子さまの遊び場やお昼寝にぴったりの畳コーナー
・子どもの「好き」が広がるヌック空間
・自然素材を使用した、家族にやさしい空間
・おもちゃや日用品もスッキリ片付く収納豊富な間取り
・在宅ワークに使える2階書斎スペース
・毎日の使いやすさを考えた造作の工夫
・敷地約40坪で駐車4台可能、来客時も安心






“建売以上・注文未満”のちょうどいい住まいを実現
【こんな方は建売がおすすめ】
・注文住宅はハードルが高いと感じている方
・打合せや細かい仕様決めが面倒に感じる方
・できるだけ早く新生活をスタートしたい方
物件の詳細や資金計画など
話を聞くだけでもOKです。
人気エリアのため
ご検討の方はお早めにご相談ください!

