REAL ESTATE 岡山県の分譲地(売地/宅地)情報
土地
倉敷市北畝
- 所在地
- 倉敷市北畝6丁目 5-16
- 価格
- 998万円(1号地・2号地)
- 土地面積
- 158.94㎡(48.07坪)
- 坪単価
- 20.76万円
物件詳細情報
物件名
倉敷市北畝 土地
住所
倉敷市北畝6丁目 5-16
価格
998万円(1号地・2号地)
交通
水島臨海鉄道徒歩弥生駅まで14分
土地面積
158.94㎡(48.07坪)
道路
東6m
地目
宅地
用途地域
第一種中高層住居専用地域
建ぺい率
60%
容積率
200%
現況
更地
引渡
相談
小学校区
第四福田小学校
中学校区
福田中学校
負担金
上下水道負担金55万円
取引態様
売主
備考
公営水道、公共下水、建築条件付(木の城いちばん)
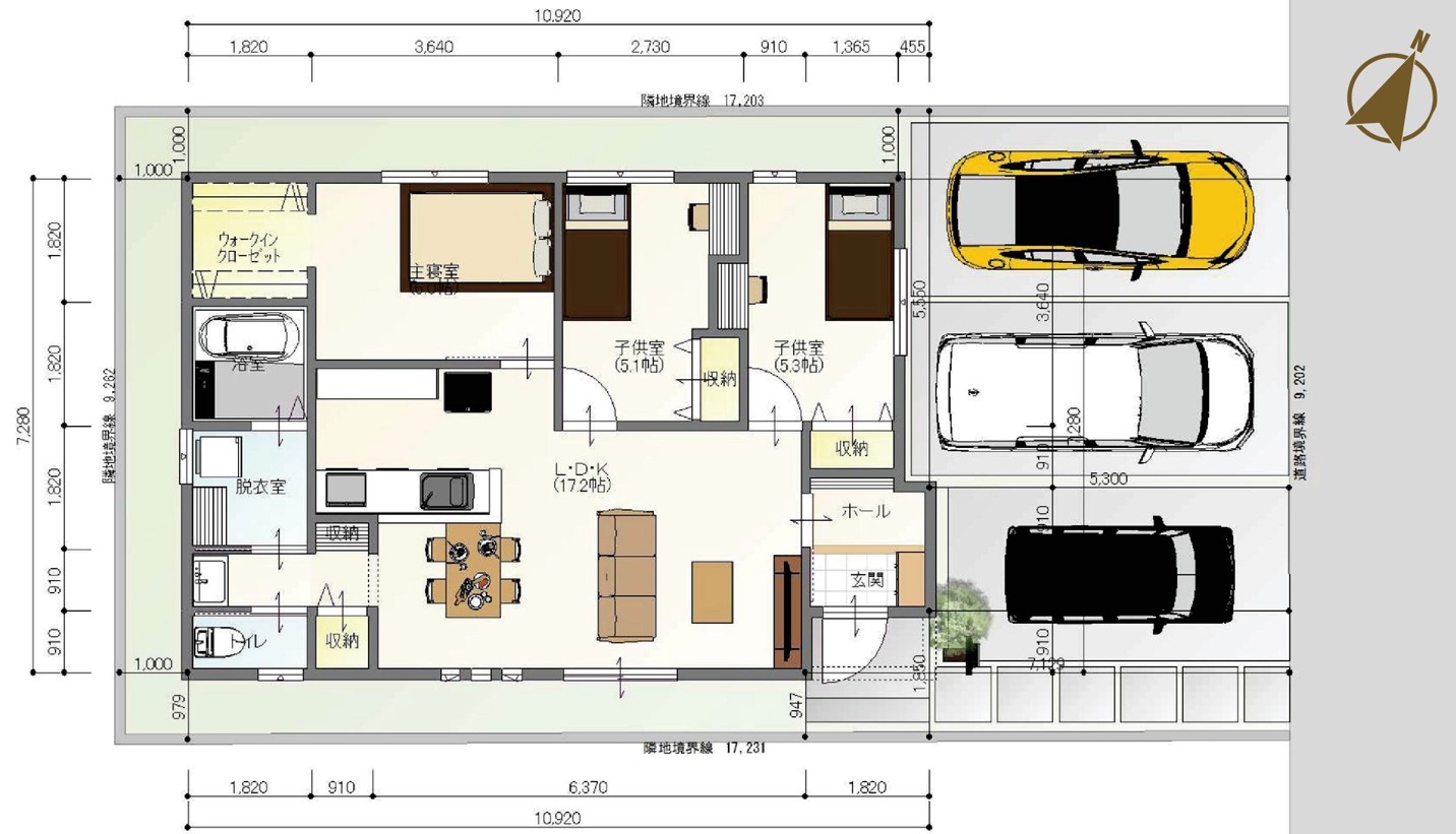
セットプラン①
●延床面積:75.77㎡(22.92坪)
●間取り:3SLDK ●駐車場:3台
約23坪とは思えないゆとりを感じる平屋プラン



セットプラン②
●延床面積:91.92㎡(27.80坪)
●間取り:3SLDK ●駐車場:3台
家族の気配がつながる、二階建てプラン








新生活応援キャンペーン
倉敷市北畝の土地+建物を
ご契約いただいた方限定で
太陽光発電システム3.64kw
プレゼント(2026年3月31日まで)
暮らしやすさと落ち着いた住環境が魅力の全2区画の分譲地です。
スーパー・ドラッグストア・飲食店が徒歩圏内、生活便利な立地で、
幼稚園や小学校も近く、子育て世帯も安心の環境です。
また、国道430号線や水島臨海鉄道「弥生駅」へのアクセス良好!!
◆第四福田幼稚園まで徒歩11分
◆第四福田小まで徒歩11分
◆コープ北畝まで徒歩3分
◆ザグザグ北畝店まで徒歩6分
◆ディオマート 北畝店まで徒歩8分