REAL ESTATE 岡山県の分譲地(売地/宅地)情報
土地
倉敷市大内
- 所在地
- 倉敷市大内985-18
- 価格
- 1,175万円
- 土地面積
- 146.67㎡(44.36坪)
- 坪単価
- 26.48万円
イオンモール倉敷まで徒歩13分の便利な立地
最寄りのバス停(大内)まで徒歩9分
物件詳細情報
物件名
倉敷市大内 土地
住所
倉敷市大内985-18
価格
1,175万円
交通
JR倉敷駅まで徒歩26分
土地面積
146.67㎡(44.36坪)
道路
東6m、西6m
地目
宅地
用途地域
第一種低層住居専用地域
建ぺい率
50%
容積率
100%
現況
更地
引渡
相談
小学校区
万寿小学校
中学校区
倉敷西中学校
負担金
取引態様
売主
備考
景観法 宅地造成及び特定盛土等規制法
法令上の制限その他 ○倉敷市立地適正化計画、居住誘導区域
○屋外広告物規制区域、第一種許可地域
西側私道道路持分あり、地中埋設物あり(鋼管杭L=3m)、現況渡し、建築条件付(木の城いちばん)
セットプラン①
●延床面積:74.74㎡(22.60坪)
●間取り:3SLDK ●駐車場:2台
コンパクトながらも使い勝手の良い平屋プラン



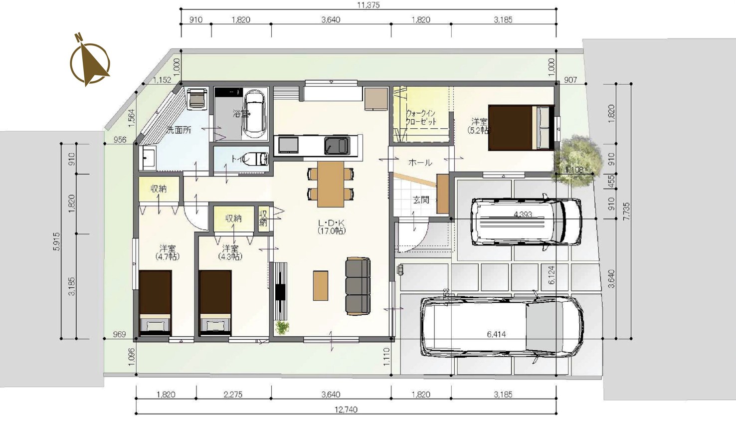
セットプラン②
●延床面積:86.12㎡(26.05坪)
●間取り:3SLDK ●駐車場:3~4台
賢く広くちょうど良い、二階建てプラン












イオンモール倉敷や倉敷駅へもアクセス良く、周辺環境が充実している住宅地です。閑静な住宅街で、前面道路も6mあるので車の出し入れもラクラクです。
◆酒津公園まで徒歩5分
◆大内保育園まで徒歩5分
◆イオンモール倉敷まで徒歩13分
◆倉敷駅まで徒歩26分(自転車で11分)